Trilocale in vendita

Conversano, Via Giuseppe Giusti
€ 179.000
3 locali 3 locali
81 Mq 81 Mq
2 bagni 2 bagni

Trilocale in vendita

Conversano, Via Giuseppe Giusti

Descrizione annuncio

In una tranquilla e riservata traversa di Via Castellana, a pochi passi dalla palestra “In Movimento” e nel cuore di una zona centrale e perfettamente servita, proponiamo in vendita un appartamento che rappresenta l’equilibrio ideale tra comfort moderno, funzionalità degli spazi e qualità della vita.

L’immobile si trova al terzo piano di uno stabile condominiale ben tenuto e servito da ascensore. Già dall’ingresso si percepisce la cura con cui è stato oggetto di una recente e completa ristrutturazione: ogni intervento è stato studiato per offrire un'abitazione attuale, moderna, efficiente e rifinita in ogni dettaglio, capace di competere per qualità e dotazioni con gli appartamenti di nuova costruzione.

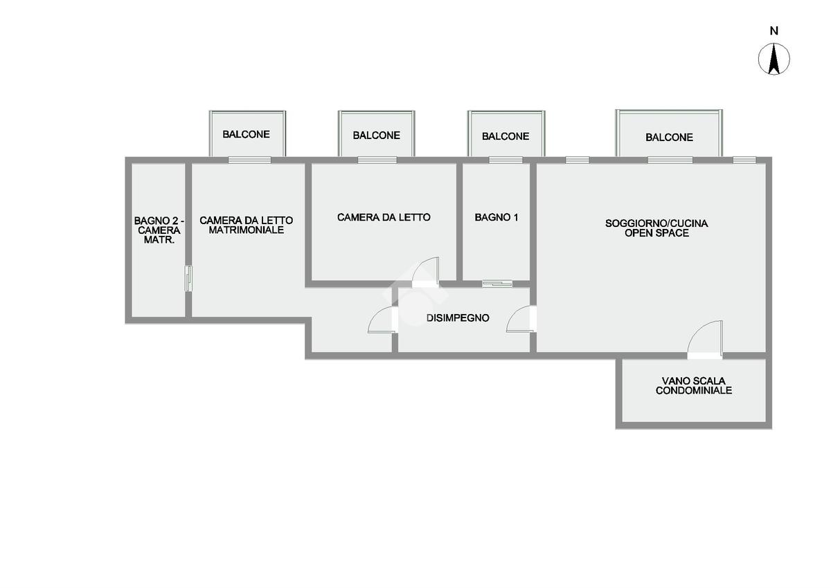
Con una superficie interna di circa 80 mq, l’appartamento si distingue per la straordinaria luminosità. Ogni ambiente è dotato di finestra e balcone, garantendo luce e una piacevole sensazione di ariosità. Gli spazi sono stati organizzati in modo intelligente e contemporaneo: l’ingresso si apre su un ampio soggiorno open space, accogliente e versatile, perfetto per creare una zona living conviviale in cui ricevere amici o semplicemente rilassarsi.

La zona notte ospita due camere da letto spaziose e ben proporzionate, entrambe confortevoli e facilmente arredabili, pensate per garantire privacy e tranquillità e due bagni completi, moderni e rifiniti con gusto, di cui uno in camera ed uno con un balcone dedicato, dettaglio che assicura ulteriore luce e ventilazione naturale.

Dal punto di vista tecnico e impiantistico, l’immobile offre dotazioni di alto livello. La porta d’ingresso è blindata e vi è la predisposizione per impianto d’allarme sia perimetrale che volumetrico, per una sicurezza totale. Gli infissi in PVC con doppia vetrocamera antisfondamento assicurano eccellente isolamento termico e acustico. La pavimentazione, uniforme in tutta la casa, è in gres porcellanato effetto parquet, mentre le tapparelle elettriche rappresentano un ulteriore elemento di comodità nella gestione quotidiana degli spazi.

Il riscaldamento è autonomo, alimentato da una caldaia a condensazione di nuova installazione, sinonimo di efficienza e consumi contenuti. Troviamo, inoltre, un impianto di climatizzazione canalizzato BIZONA, in grado di erogare sia aria fredda che aria calda, con la possibilità di gestire separatamente zona giorno e zona notte, una soluzione che consente di personalizzare il comfort in base alle esigenze e agli orari di utilizzo, migliorando ulteriormente la qualità della vita all’interno dell’abitazione.

Una casa pronta ad accogliere una nuova famiglia o perfetta anche come investimento di qualità, capace di coniugare estetica, funzionalità e innovazione in un’unica soluzione abitativa.

Le caratteristiche tecniche, la qualità della ristrutturazione e la posizione rendono questa proposta particolarmente interessante, ma è solo visitandola di persona che si può percepire davvero l’equilibrio degli spazi, la luce che riempie gli ambienti e la sensazione di casa che trasmette fin dal primo ingresso. Contattaci per fissare un appuntamento e a venirla a scoprire dal vivo!

Mostra tutto

Nelle vicinanze

Trasporto pubblico Trasporto pubblico
Conversano
Conversano
790 m
Scuole Scuole
I Circolo
330 m
Istituto Magistrale
550 m
Scuola Secondaria Francesco Carelli
560 m
Liceo Scientifico
590 m
Liceo Classico
640 m
Ospedali Ospedali
presidio ospedaliero Fiorenzo Jaia
520 m
Bar Bar
Art Cafè
330 m
L'ablia "caffe"
410 m
Ristoranti Ristoranti
Terrasse Belvedere
520 m
Masseria Petrullo
2,4 Km
Mostra tutto

Caratteristiche

Rif.:
61174191
Piano:
3 di 4 con ascensore (Piano medio)
Balconi:
4
Camere da letto:
2
Arredamento:
Assente
Condizionamento:
Autonomo
Mostra tutto
Prezzo Prezzo
€ 179.000
Rata mutuo Rata mutuo
€ 844 / mese
Spese annue Spese annue
€ 0
Proponi il tuo prezzoProponi il tuo prezzo

Classe Energetica

C
C
C
C
C
C
C
C
C
EP globale non rinnovabile:
160.30 kW h/m² anno
EP globale rinnovabile:
105.70 kW h/m² anno
EP invernale del fabbricato:
EP estiva del fabbricato:
Anno di costruzione:
1967
Riscaldamento:
Autonomo
Tipo impianto:
A radiatori
Tipo alimentazione:
Metano

Ti interessa visionare l'immobile?

Fissa un appuntamento  Fissa un appuntamento

Richiedi informazioni

Clicca su Leggi per aprire l'informativa
* Questi campi sono obbligatori

Calcola il tuo mutuo

Semplice e senza impegno
Anticipo

( % )
Mutuo

( % )

pochi semplici passi

inserisci i tuoi dati
Questionario completato
Grazie per aver richiesto un appuntamento senza impegno con un nostro Consulente del Credito e Assicurativo.

Hai inserito correttamente tutti i dati necessari e a breve riceverai una e-mail con un link da convalidare per inviare i tuoi dati.
Affiliato
Studio Toro Sas
Via Giuseppe Maria Mucedola, 5 70014 Conversano (BA)

Il nostro staff


  • Marco Selicato
    Collaboratore

  • Roberto Capozzi
    Affiliato
Via Giuseppe Maria Mucedola, 5 70014 Conversano (BA)
Zona: Conversano
Mostra su mappa
Orari: Lunedì: 10:30-13:00 16:00-20:00 Martedì: 09:00-13:00 16:00-20:00 Mercoledì: 09:00-13:00 16:00-20:00 Giovedì: 09:00-13:00 16:00-20:00 Venerdì: 09:00-13:00 16:00-20:00 Sabato: 09:00-13:00
Affiliato
Studio Toro Sas
Via Giuseppe Maria Mucedola, 5 70014 Conversano (BA)

2026 Tecnocasa Franchising S.p.A. - P. IVA 08365160152 - Via Monte Bianco 60/A 20089 Rozzano (MI). Ogni agenzia ha un proprio titolare ed è autonoma. Privacy policy | Policy utilizzo | Cookie policy